CENA
od 7,9725 €
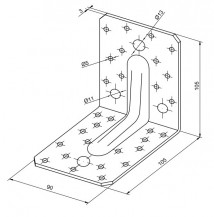
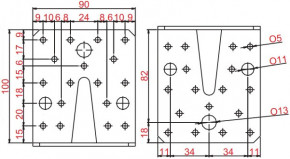
Úhelníky 90x105x105mm
- Výrobce: Bova
- Kategórie: Kovové úhelníky - spojovací, konstrukční, kotevní
- Dostupnost: ihned k odeslání
- Materiál: Ocel
- Povrch: Bílý zinek
Statický úhelník s otvory, vyrobený z ocelového pozinkovaného plechu o síle 3 mm.
V rozměru uvádíme, zda se jedná o verzi s vlisem či bez (viz obrázek produktu).

Zvolte balení výrobku podle potřebného počtu kusů
Podrobnější popis
Aplikace
Úhelník se používá pro spojování prvků dřevěných tesařských a jiných konstrukcí, pro spoje přenášející velké zatížení, pro kotvení vazníků na obvodové věnce apod. Jako spojovací materiál slouží konvexní hřebíky či vruty o průměru 4 mm nebo svorníky a matice.

Podobné produkty
ŠÍŘKA
80 mm
CENA
od 3,8601 €
ŠÍŘKA
65 mm
CENA
od 2,9151 €
Sme vám k dispozícii
Roman Havlíčeke-shop, internetový špecialista
info@sroubyonline.cz
Pondelok - Piatok 7.00 - 15.30



