DÉLKA
40 mm
CENA
od 0,1732 €
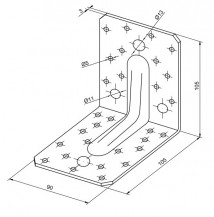
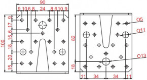
Statický úhelník s otvory, vyrobený z ocelového nerezového plechu o síle 3 mm.
V rozměru uvádíme, zda se jedná o verzi s vlisem či bez (viz obrázek produktu).

Aplikace
Úhelník se používá pro spojování prvků dřevěných tesařských a jiných konstrukcí, pro spoje přenášející velké zatížení, pro kotvení vazníků na obvodové věnce apod. Jako spojovací materiál slouží konvexní hřebíky či vruty o průměru 4 mm nebo svorníky a matice.

info@sroubyonline.cz
Pondelok - Piatok 7.00 - 15.30

Doprava ZADARMO
Pri nákupe nad 209 €.

Od 1 kusa
Možnosť nákupu od 1 kusa.

Skladová zásoba
Viac ako 40 000 položiek skladom.